Văn Phòng Nhà Xanh - Kiến Trúc 1mm
LÀN HƠI MÁT DƯỚI NẮNG XANH – VĂN PHÒNG NHÀ XANH

Giới thiệu 

Bằng cách tích hợp các giải pháp thiết kế xanh và tiết kiệm năng lượng, văn phòng Nhà Xanh có thể giảm bớt tác động tiêu cực đến môi trường, đồng thời tạo ra một môi trường làm việc lành mạnh và sáng tạo cho nhân viên.

Trước bức tranh của một Việt Nam đang trải qua sự biến đổi mạnh mẽ dưới tác động của sự phát triển kinh tế và xã hội, chúng ta không thể không nhận thất sự xuất hiện ngày càng nhiều của các khu đô thị và các thành phố lớn. Những biểu tượng mới này dần thay thế cho những mảng xanh rộng lớn của vùng nhiệt đới hoang sơ ban đầu.

Quá trình “phát triển” mang lại nhiều cơ hội và tiềm năng to lớn, nhưng cũng đặt ra những thách thức đáng kể như sự thiếu hụt không gian xanh, nhiệt độ tăng cao, và ô nhiễm môi trường. Những vấn đề cấp bách này đòi hỏi sự chú ý và giải pháp sáng tạo từ cộng đồng và các nhà quản lý.

Những cơ hội và thách thức của hành trình phát triển đất nước đòi hỏi chúng ta phải tìm kiếm các giải pháp bền vững nhằm hướng tới một tương lai xanh hơn và lành mạnh hơn cho mọi người. Đó là lí do vì sao nhà xanh trở thành một đề tài mà kiến trúc hiện nay hướng tới.

 

 

Nội dung

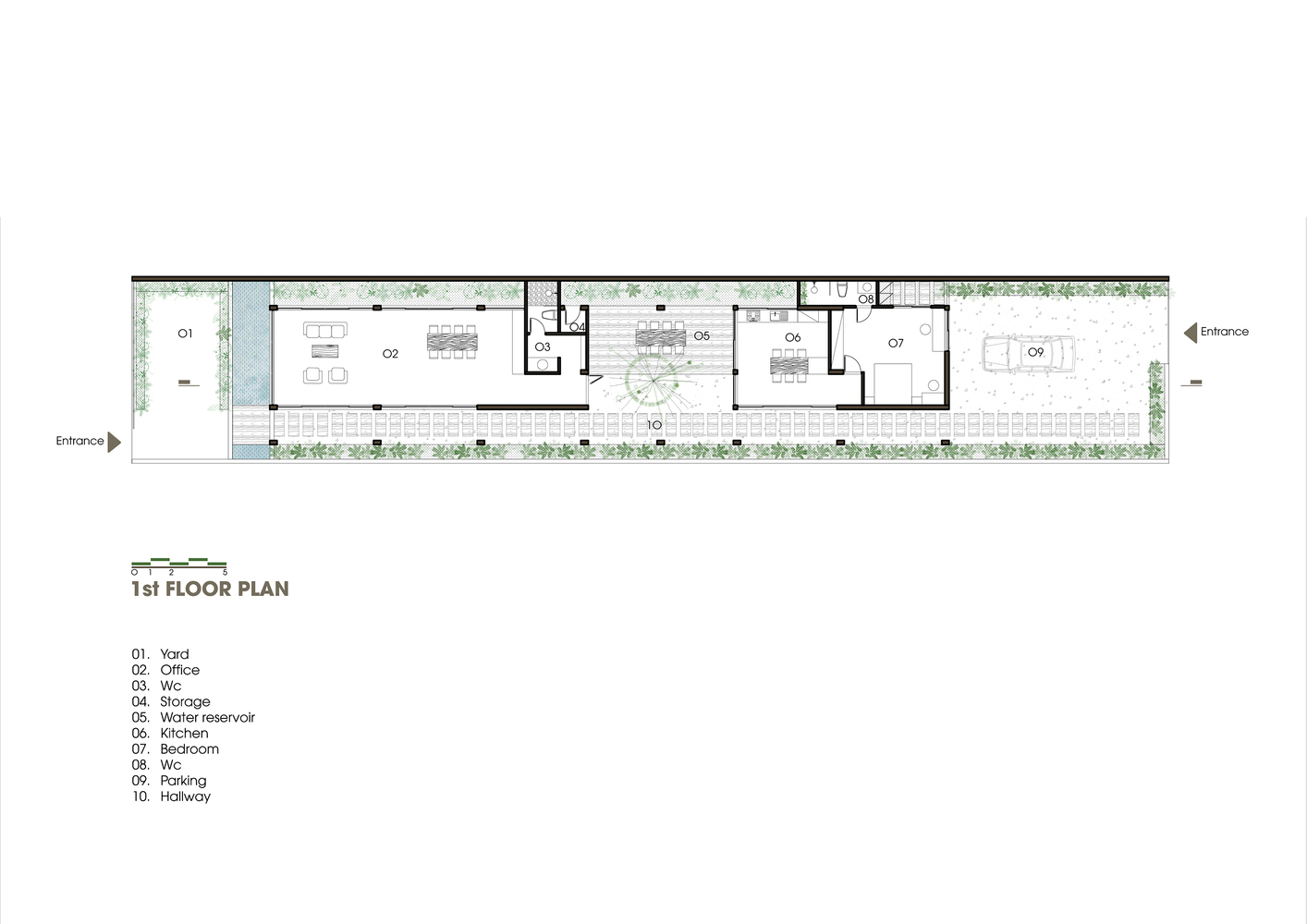
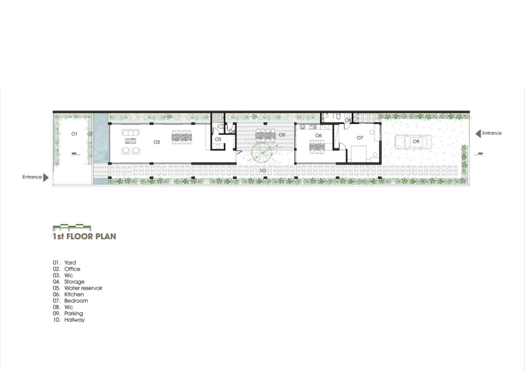
Dự án văn phòng Nhà Xanh đã được quy hoạch thành hai khu vực chính nhằm đáp ứng nhu cầu và mong muốn của chủ đầu tư.

Khu vực đầu tiên là một không gian làm việc linh hoạt, tạo điều kiện cho nhân viên phát triển tiềm năng và sự sáng tạo. Tại đây, mọi người có thể cùng nhau làm việc một cách linh hoạt và thoải mái, thúc đẩy sự giao tiếp và hợp tác giữa các nhân viên.

Khu vực thứ hai, là không gian “nhà mẫu”, được thiết kế để cung cấp cho khách hàng trải nghiệm sâu sắc về không gian sống hiện đại và tiện nghi.

Từ phòng ngủ đến phòng bếp và khu vực ăn uống, cũng như phòng tắm, các chi tiết đều được chăm chút kỹ lưỡng để tạo ra một không gian sống đầy đủ và thoải mái nhất.

 

 

Mục tiêu là tạo ra trải nghiệm để khách hàng của công ty có thể cảm nhận được sự sang trọng và tiện ích mà sản phẩm của văn phòng Nhà Xanh mang lại.

Giữ lại cây xoài lâu năm và đưa nó vào khuôn viên dự án Nhà Xanh không chỉ là một biện pháp bảo vệ môi trường mà còn là một cách thể hiện sự tôn trọng và biến cái cũ thành mới.

Từ đó tạo ra một không gian sống và làm việc độc đáo và gần gũi với tự nhiên hơn.

Cây xoài không chỉ mang lại sự mát mẻ và xanh mát cho khuôn viên mà còn tạo ra một điểm nhấn độc đáo, là biểu tượng của sự phát triển và bền vững cho Nhà Xanh.

Giữ lại cây xoài cũng góp phần vào việc tạo ra một không gian vườn nhỏ, nơi nhân viên và khách hàng có thể tận hưởng cảm giác yên bình và gần gũi với thiên nhiên giữa môi trường làm việc bận rộn.

Đồng thời, việc phân chia hai không gian chính – khối “văn phòng” và khối “nhà mẫu” – được thực hiện một cách tinh tế.

Thông qua việc sử dụng cây xoài làm điểm chia cắt, Nhà Xanh không chỉ mang lại sự sáng tạo mà còn giúp tạo ra sự phân biệt rõ ràng giữa hai khu vực, từ đó tạo điều kiện thuận lợi cho sự hoạt động và trải nghiệm của cả nhân viên và khách hàng.

Việc phủ xanh văn phòng Nhà Xanh từ sân vườn đến hệ thống mái là một bước quan trọng để tạo ra một môi trường sống và làm việc xanh, lành mạnh.

Sử dụng cây cỏ và cây xanh không chỉ giúp giảm hiệu ứng đảo nhiệt đô thị mà còn cung cấp không gian xanh cho nhân viên và khách hàng thư giãn và tận hưởng.

Ứng dụng các giải pháp khác để “kích hoạt vòng tròn bền vững” có thể giúp cải thiện chất lượng không khí và giảm thiểu ô nhiễm môi trường. Một công trình chỉ có cây xanh chưa đủ để được coi là bền vững, cần có các giải pháp tiết kiệm năng lượng và thực hiện các chiến lược bền vững toàn diện bao gồm:

  • Sử dụng gạch không nung cho phần lớn công trình nhà xanh.
  • Bể chứa nước ngầm dự trữ nước mưa từ mái nhà xuống. Hệ thống nước mưa cũng được nối với bể cá ở sân trước, nơi lọc chất thải từ cá và vi sinh vật.
  • Kết hợp với hệ thống tưới tự động cung cấp nước cho khu vườn cây xanh trên xung quanh dự án, tạo nên vòng tuần hoàn tái sinh và bảo tồn tài nguyên nước.

Việc bố trí nhiều khe thông gió và cửa kính lớn trong công trình Nhà Xanh không chỉ tạo điều kiện cho sự lưu thông không khí tự nhiên, mà còn kết hợp với các giải pháp khác để tối ưu hóa việc tản nhiệt và giảm nhu cầu sử dụng hệ thống điều hòa không khí, đặc biệt là trong những ngày thời tiết nắng nóng.

Sử dụng cửa kính lớn và lắp đặt tấm pin năng lượng mặt trời ở phía trên khu vực nhà mẫu nhằm tối ưu hóa ánh sáng tự nhiên, giúp giảm việc sử dụng đèn chiếu sáng và tiết kiệm năng lượng tiêu thụ.

Hệ thống điều hòa không khí thông minh tạo ra một môi trường văn phòng hài hòa, tiết kiệm và thân thiện với môi trường theo đúng tiêu chí nhà xanh.

Lời kết

Văn phòng Nhà Xanh không chỉ là một không gian làm việc điển hình mà còn là biểu tượng cho sự thích nghi và tiên phong trong việc áp dụng các giải pháp bền vững vào môi trường làm việc.

Với tinh thần cam kết và quyết tâm đồng lòng từ kiến trúc sư và chủ đầu tư, việc áp dụng các giải pháp và ứng dụng năng lượng, ánh sáng, nguồn nước và các yếu tố khác tại Nhà Xanh không chỉ đơn giản là việc triển khai, mà còn là một quy trình được chăm sóc và bảo dưỡng định kỳ một cách kỹ lưỡng và chặt chẽ.

Việc đưa ra ý tưởng và triển khai những giải pháp này không chỉ đòi hỏi sự đầu tư cao ban đầu, mà còn cần sự quản lý và chăm sóc hiệu quả trong quá trình vận hành doanh nghiệp. Tuy nhiên, những nỗ lực và cam kết từ mọi người trong việc xây dựng một môi trường làm việc hiệu quả và bền vững hơn trong tương lai không thể phủ nhận.

Việc này không chỉ mang lại lợi ích ngay lập tức cho nhân viên và doanh nghiệp, mà còn đóng góp vào việc bảo vệ môi trường và xây dựng một tương lai bền vững cho cộng đồng. Nhìn chung, văn phòng Nhà Xanh không chỉ là một bước tiến quan trọng trong hành trình chuyển đổi sang một nền kinh tế và xã hội bền vững hơn ở Việt Nam, mà còn là minh chứng cho sự cam kết và sự nhìn nhận sâu rộng về vấn đề này.

—————————————

CÔNG TY KIẾN TRÚC 1mm