Giới thiệu
KHÔNG GIAN LÀM VIỆC HIỆN ĐẠI VÀ ĐẦY CẢM HỨNG
Văn phòng Hoàng Anh, do công ty Kiến Trúc 1mm thiết kế và thi công, mang phong cách Industrial kết hợp hiện đại. Không gian làm việc năng động và thoải mái với gam màu cam và xanh lá đối lập, tạo sự nhiệt huyết và cân bằng cảm xúc.
Nội thất được sắp đặt hợp lý và tiện nghi, từ bàn làm việc gỗ màu sồi ấm cúng đến các chậu cây xanh mát, giúp giảm căng thẳng và nâng cao hiệu quả công việc. Văn phòng còn có phòng họp riêng với kính cường lực, tạo không gian mở và giữ được sự riêng tư.
Nội dung
Nhân viên văn phòng thường phải ngồi một chỗ và làm việc trong những tiếng đồng hồ dài đằng đẵng. Điều này có thể dẫn đến mệt mỏi và giảm hiệu suất làm việc nếu không có một môi trường thoải mái và kích thích sáng tạo. Đây chính là lý do tại sao văn phòng Hoàng Anh, do công ty Kiến Trúc 1mm thiết kế, đã chọn cách sử dụng gam màu cam và xanh lá vốn dĩ không liên quan đến nhau trong không gian làm việc của mình.
Sự đối lập thú vị giữa hai gam màu này được khéo léo áp dụng, tạo nên một bức tranh sống động và đầy sức sống. Màu cam nóng bỏng, thể hiện sự nhiệt huyết và năng động của tuổi trẻ, được kết hợp với các chậu cây xanh và mảng tường xanh mát, giúp cân bằng lại cảm xúc và màu sắc. Sự kết hợp này không chỉ giúp không gian không quá nóng bức mà còn tạo nên ấn tượng sâu sắc cho bất kỳ ai bước vào văn phòng.
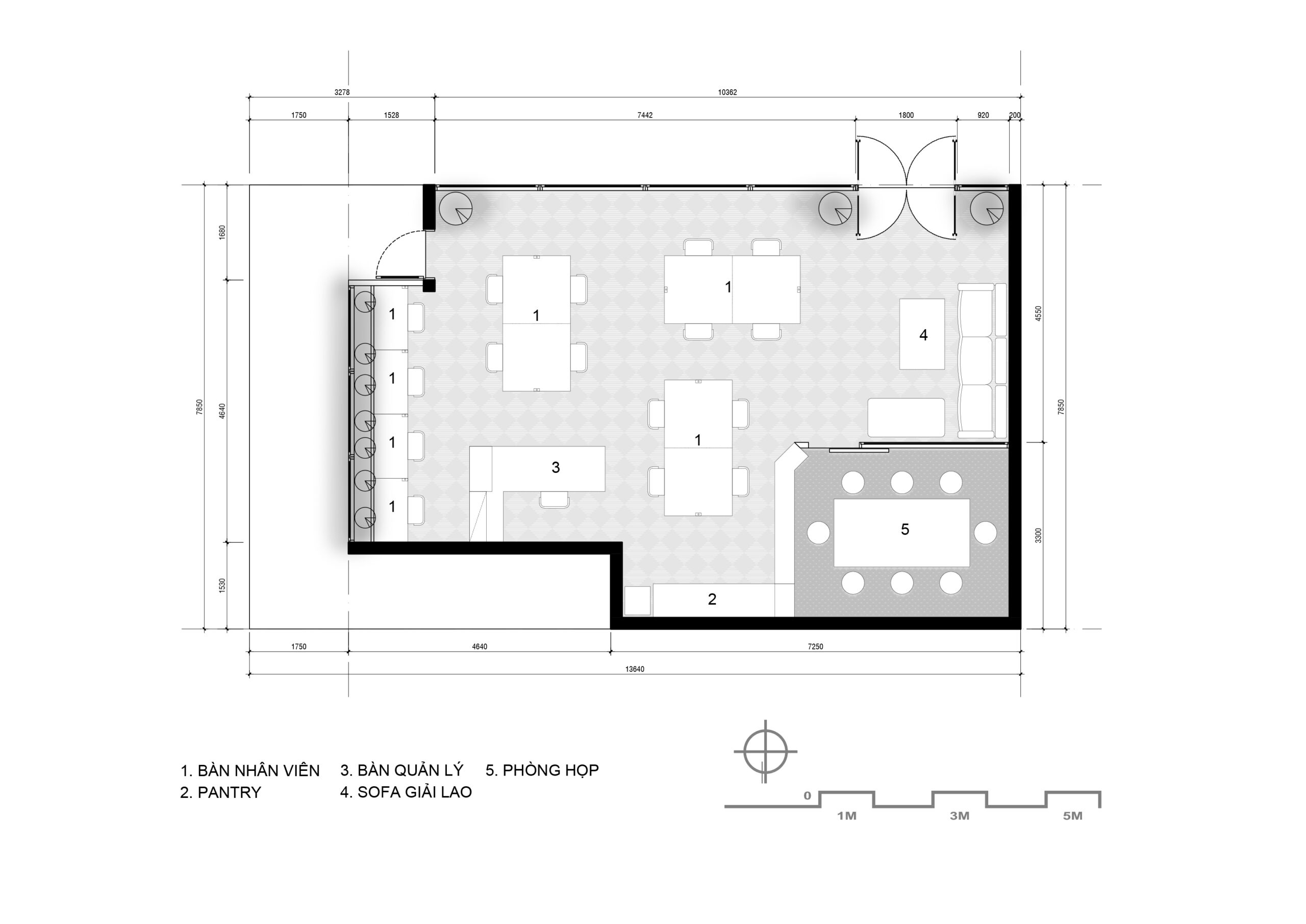
Điều đáng chú ý trong thiết kế nội thất của văn phòng Hoàng Anh là mọi thứ đều được sắp đặt một cách hợp lý và tiện nghi. Mỗi chi tiết nhỏ đều được tính toán để nhân viên có thể làm việc hiệu quả, đồng thời tận dụng tối đa không gian. Khi mở cửa bước vào, bạn sẽ thấy một không gian rộng mở với bàn làm việc chính đặt ở giữa và hai bên là các góc làm việc cá nhân, giúp nhân viên có không gian riêng tư và tập trung.
Tường phía trước và sau văn phòng được lát kính, không chỉ tạo ra không gian mở mà còn cho phép ánh sáng tự nhiên tràn ngập vào phòng, giúp tiết kiệm năng lượng và mang lại cảm giác thoải mái, dễ chịu cho người sử dụng. Sự lựa chọn này không chỉ giúp không gian trở nên thoáng đãng hơn mà còn tạo nên một môi trường làm việc thân thiện và gần gũi với thiên nhiên.
Văn phòng Hoàng Anh còn có một phòng họp riêng, được thiết kế để diễn ra những cuộc họp hàng ngày hoặc gặp mặt các đối tác và khách hàng. Phòng họp này được ngăn cách với không gian bên ngoài bằng những tấm kính cường lực lớn, giúp người ngồi bên trong không bị ngộp, có thể nhìn ra bên ngoài nhưng vẫn giữ được sự riêng tư cần thiết cho các cuộc họp quan trọng.
Không gian xanh là một yếu tố không thể thiếu trong văn phòng Hoàng Anh. Các chậu cây và mảng tường xanh mát không chỉ giúp tạo cảnh quan tự nhiên mà còn làm giảm căng thẳng cho những người làm việc. Sự hiện diện của cây xanh trong văn phòng không chỉ giúp cải thiện chất lượng không khí mà còn mang lại cảm giác thư thái, góp phần tăng hiệu quả công việc.
Bàn làm việc trong văn phòng được làm từ ván gỗ màu sồi, mang đến cảm giác ấm cúng và sang trọng. Sự lựa chọn này không chỉ tạo ra một không gian làm việc thoải mái mà còn phản ánh sự chuyên nghiệp và tinh tế. Ngoài ra, một số trang trí khác như đèn đặt bên trên bàn làm việc và những bức tranh trừu tượng cũng được thêm vào, tạo ra những điểm nhấn thú vị và mang lại sự phong phú trong thiết kế. Những chi tiết này không chỉ làm cho không gian thêm phần sinh động mà còn khơi nguồn cảm hứng cho nhân viên trong quá trình làm việc.
Lời kết
Tổng kết lại, văn phòng Hoàng Anh không chỉ là một không gian làm việc, mà còn là một môi trường thúc đẩy sự sáng tạo và năng động. Thiết kế của công ty Kiến Trúc 1mm đã thành công trong việc tạo ra một không gian vừa thẩm mỹ, vừa tiện nghi, đáp ứng đầy đủ nhu cầu của nhân viên văn phòng. Sự kết hợp khéo léo giữa gam màu cam và xanh lá, cùng với các yếu tố nội thất được sắp đặt hợp lý, đã mang lại một môi trường làm việc lý tưởng, nơi nhân viên có thể làm việc hiệu quả và thoải mái.
Những chi tiết nhỏ nhưng đầy tinh tế như bàn làm việc gỗ màu sồi, các chậu cây xanh, và những bức tường kính mở rộng không gian, đều góp phần tạo nên một văn phòng hoàn hảo. Phòng họp riêng với kính cường lực không chỉ giữ được sự riêng tư mà còn tạo ra một không gian thoáng đãng, thoải mái cho các cuộc họp quan trọng. Với tất cả những yếu tố này, văn phòng Hoàng Anh thực sự là một môi trường làm việc mơ ước, nơi mà mọi người đều cảm thấy hài lòng và được truyền cảm hứng mỗi ngày.
Văn phòng Hoàng Anh chính là minh chứng cho sự kết hợp giữa phong cách và công năng, một không gian làm việc hiện đại, sáng tạo và đầy cảm hứng, chắc chắn sẽ tiếp tục là nguồn động lực lớn lao cho sự phát triển của công ty và sự nghiệp của từng nhân viên.
—————————————
CÔNG TY KIẾN TRÚC 1mm
- Hotline: +84.961.357.465
- Email: 1mmArchitects.CO@gmail.com
- Website: 1mm.com.vn
- CN Sài Gòn: Tòa nhà The Prince Residence – 19, 21 Nguyễn Văn Trỗi, phường 11, quận Phú Nhuận, TP.HCM
- CN Đà Lạt: Thảo Tùng Villa – 20 Sương Nguyệt Ánh, phường 9, Đà Lạt, Lâm Đồng.













