Giới thiệu
CE Land là một văn phòng được thiết kế và thi công bởi công ty Kiến Trúc 1mm. Với phong cách tinh tế và màu sắc nhẹ nhàng, văn phòng CE Land tạo ra không gian mở, mang đến sự thoải mái cho những ai làm việc tại đây.
Để hiểu rõ hơn về quá trình thiết kế và những ý tưởng độc đáo mà Kiến Trúc 1mm đã đưa vào dự án này, hãy xem video thiết kế chi tiết ở cuối bài. Video sẽ giúp bạn có cái nhìn toàn diện hơn về không gian và phong cách của văn phòng CE Land.
Nội dung
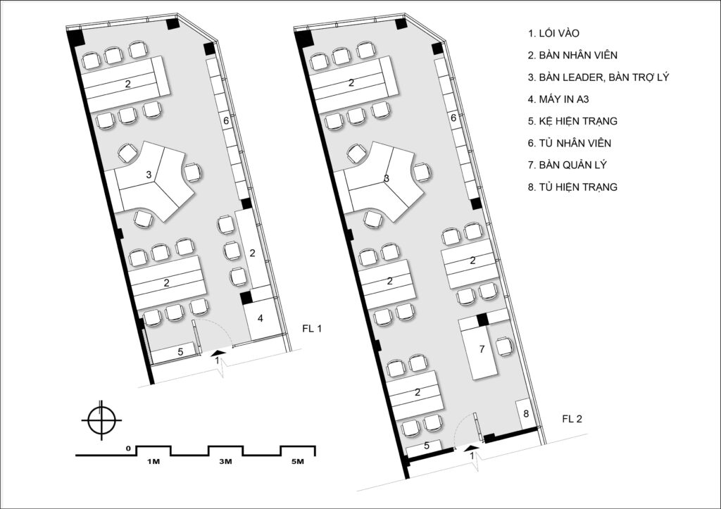
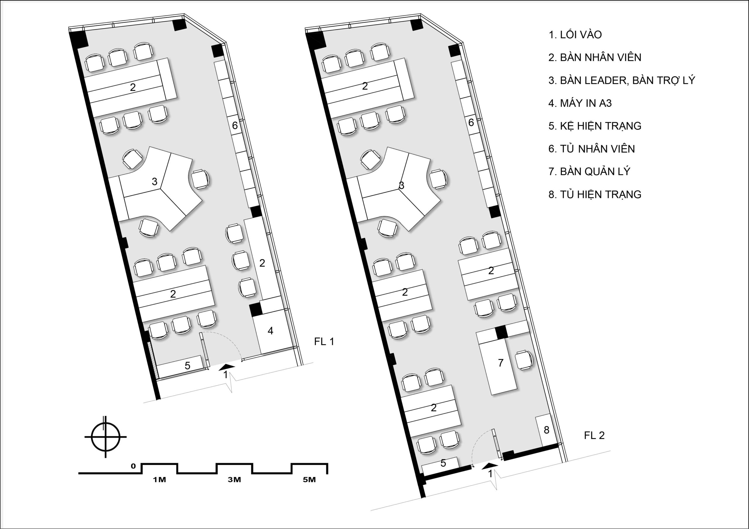
Văn phòng gồm 2 tầng, nằm ngay trong tòa nhà của công ty, với quy mô hơn 40 chỗ ngồi và được chia thành các nhóm nhỏ riêng biệt, đáp ứng theo nhu cầu phân chia nhân sự của công ty.
Văn phòng của CE Land được thiết kế theo tông màu chủ đạo là trắng, xám bê tông và nâu nhạt của gỗ, giúp làm nổi bật logo màu vàng đồng của công ty. Cùng với phong cách hiện đại tinh tế, khi bước vào văn phòng của CE Land, mọi người sẽ bị thu hút bởi không gian tràn ngập ánh sáng tự nhiên, tạo nên một cảm giác nhẹ nhàng và tươi mới.
Các mảng tường được sơn hiệu ứng bê tông cùng với rèm cửa lá sách màu trắng kết hợp với nhau tạo nên một không gian nhẹ nhàng trong khu vực làm việc.
Một trong những điểm nhấn của CE Land là hệ cửa sổ lớn đụng trần chạy dọc theo chiều dài của căn phòng, cho phép mọi người tận hưởng không gian mở, bao trọn cảnh quan đô thị xung quanh.
Đây cũng là một trong những lợi thế về kiến trúc của CE Land, nhờ đó Kiến Trúc 1mm tận dụng để tối đa hóa việc sử dụng ánh sáng mặt trời vào không gian làm việc này, giúp ánh sáng tự nhiên có thể tràn ngập vào bên trong văn phòng.
Để tạo thêm sự tinh tế cho văn phòng, hệ trần của CE Land được thiết kế mới những đường nét uốn lượn kết hợp với hệ thống đèn led, góp phần mang lại cảm giác ấn tượng và chuyên nghiệp. Ngoài ra, cây xanh cũng được bố trí để giúp tạo cảm giác sinh động, trong lành.
Nội thất của văn phòng CE Land cũng được thiết kế rất tiện dụng. Các tủ gỗ thấp được bố trí để đựng đồ đạc cho nhân viên, giúp văn phòng gọn gàng hơn. Bàn làm việc được ngăn bởi những tấm kính thấp, tạo sự riêng tư nhưng không hề bị cách biệt với mọi người.
Máy móc ở văn phòng cũng được thiết kế bố trí đầy đủ, đặt tại các góc thuận tiện như máy in, máy lọc nước và camera giám sát an ninh. Giúp năng suất làm việc của mọi người được nâng cao hơn.
Lời kết
Với sự thiết kế và bố trí nội thất một cách hợp lý của công ty Kiến Trúc 1mm, văn phòng CE Land đã có một không gian làm việc hiện đại, tinh tế và có tính thẩm mỹ cao, góp phần mang lại cảm giác thoải mái và tạo nguồn cảm hứng cho các nhân viên làm việc tại đây.
Mong rằng trong tương lại, CE Land sẽ ngày càng phát triển và tiếp tục đồng hành với công ty Kiến Trúc 1mm trong những dự án tiếp theo.
—————————————
CÔNG TY KIẾN TRÚC 1mm
Hotline: +84.961.357.465
Email: 1mmArchitects.CO@gmail.com
Website: 1mm.com.vn
CN Sài Gòn: Tòa nhà The Prince Residence – 19, 21 Nguyễn Văn Trỗi, phường 11, quận Phú Nhuận, TP.HCM
CN Đà Lạt: Thảo Tùng Villa – 20 Sương Nguyệt Ánh, phường 9, Đà Lạt, Lâm Đồng








