Giới thiệu
CE Land là công ty bất động sản đang phát triển trên con đường trở thành một trong những công ty hàng đầu trong ngành. Với mục tiêu mang đến những sản phẩm bất động sản chất lượng cao, CE Land đã tin tưởng và lựa chọn công ty Kiến Trúc 1mm để thiết kế và thi công tòa nhà bốn tầng nằm ngay tại trung tâm thành phố Thủ Đức.
Nội dung
Với vị trí đắc địa nằm ở ngã ba đường, tòa nhà được thiết kế theo phong cách hiện đại với lớp bao che bằng kính và lam, toát lên vẻ đẹp mạnh mẽ, năng động như chính tinh thần của CE Land. Tòa nhà bốn tầng được công ty Kiến Trúc 1mm thiết kế bố trí hài hòa với quan cảnh xung quanh, góp phần tạo cảnh quan đẹp cho thành phố.
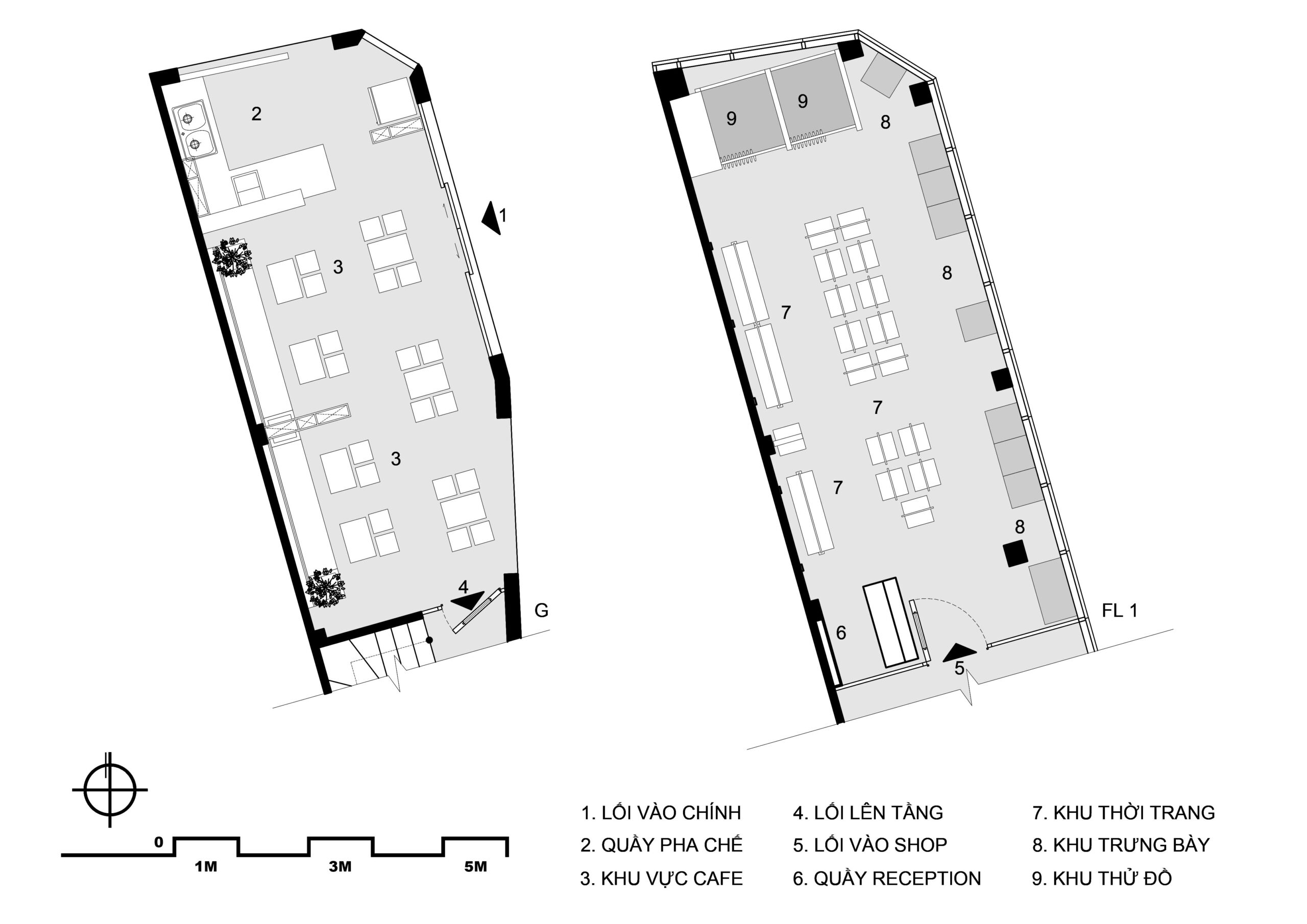
Tầng trệt của tòa nhà thiết kế dành riêng cho quán cafe CE Coffee. Quán cafe có không gian mở, mang lại sự thoải mái cho khách hàng khi thưởng thức đồ uống và trò chuyện với nhau. Quán được thiết kế với tông màu đen trắng gỗ, tạo cảm giác ấm cúng, thân mật. Ghế ở đây đa phần là kiểu ghế ngồi thấp, bố trí rải rác ở trong nhà và ngoài trời.
Ngoài ra trong quán còn có thêm cây xanh để giúp không gian thêm sinh động và kết nối với thiên nhiên. Đây chắc chắn là nơi lý tưởng để mọi người gặp gỡ, trò chuyện và thư giãn.
Tầng hai của tòa nhà CE Land là shop thời trang CE Fashion. Cửa hàng với phong cách thời trang công sở sang trọng, nữ tính.
Cửa hàng bao gồm quầy thu ngân được bố trí ngay tại lối vào, phía cuối phòng là hai phòng thay đồ rộng rãi với hệ gương cao đụng trần, khu vực trưng bày các mẫu quần áo với các thiết kế mới. Ma-nơ-canh được đặt ngay tại các ô kính lớn để trưng bày ra những sản phẩm nhằm thu hút khách hàng đến xem và mua sắm, đặc biệt vô cùng nổi bật vào ban đêm.
Bên cạnh đó, văn phòng CE Land tọa lạc tại tầng 3 của tòa nhà với phong cách mạnh mẽ, năng động thể hiện đúng tinh thần của công ty. Văn phòng có nguyên một dãy kính lớn với view nhìn từ trên cao ngắm nhìn đường phố, giúp mọi người luôn có tinh thần làm việc thoải mái và sáng tạo.
Không gian của văn phòng tạo nên sự chuyên nghiệp và hiện đại, giúp nhân viên đạt năng suất cao trong công việc.
Tầng 4 của tòa nhà là phòng làm việc của giám đốc và khu vực sân sau, có thể biến hóa linh động thành khu vực tổ chức tiệc BBQ hoặc trà chiều. Đây là nơi lý tưởng cho các buổi tiệc mừng hoặc để gặp gỡ các đối tác của công ty.
Lời kết
Tòa nhà CE Land được thiết kế với đầy đủ tiện nghi và chuyên nghiệp trong từng chi tiết. Cùng với sự hài hòa giữa hình khối và nội thất, phong cách mạnh mẽ năng động, tòa nhà sẽ là điểm nhấn nổi bật, giúp góp phần cho sự phát triển vượt bậc của CE Land.
—————————————
CÔNG TY KIẾN TRÚC 1mm
- Hotline: +84.961.357.465
- Email: 1mmArchitects.CO@gmail.com
- Website: 1mm.com.vn
- CN Sài Gòn: Tòa nhà The Prince Residence – 19, 21 Nguyễn Văn Trỗi, phường 11, quận Phú Nhuận, TP.HCM
- CN Đà Lạt: Thảo Tùng Villa – 20 Sương Nguyệt Ánh, phường 9, Đà Lạt, Lâm Đồng








