Giới thiệu
Công trình nhà phố 2 tầng – nhà chị Trang do công ty Kiến Trúc 1mm thiết kế và thi công trong vòng một tháng. Ngôi nhà phố 2 tầng này nằm trong một con hẻm nhỏ, được xây dựng trên diện tích 65m², bao gồm 2 tầng. Với phong cách thiết kế mà gia chủ mong muốn là Địa trung hải kết hợp với Scandinavian, tạo nên không gian sống rộng rãi, thoải mái, thân thuộc.
Do nhu cầu ở không quá nhiều, căn nhà phố 2 tầng được chia thành hai phần hoàn toàn riêng biệt với hai lối vào cổng chính tách riêng với nhau. Một phần để cho thuê chủ yếu ở tầng dưới, phần còn lại để gia chủ ở trải dài phía tầng trên.
Nội dung
Tập trung vào phần không gian sống của gia chủ, ta có thể thấy một phần tầng một của căn nhà phố 2 tầng này là gara đổ xe. Có đủ chỗ để chứa được ba chiếc xe máy, bên trong góc là nơi để máy giặt, thuận tiện cho việc phơi đồ ở sân bên hông. Gara sử dụng hệ cửa cuốn điện để đảm bảo an toàn, tiện nghi và tiết kiệm không gian tối đa.
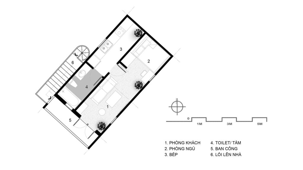
Cầu thang lên tầng hai là một điểm nhấn ấn tượng trong thiết kế của nhà phố 2 tầng – Nhà chị Trang. Được thiết kế với sự kết hợp hoàn hảo giữa cầu thang xoắn ốc và cầu thang thẳng, không chỉ mang lại tính thẩm mỹ cao mà còn tối ưu hóa việc sử dụng không gian, giúp tiết kiệm diện tích hiệu quả.
Mái che của cầu thang được Kiến Trúc 1mm sử dụng tấm Poly trong lấy sáng, giúp không gian xung quanh luôn được chiếu sáng tự nhiên. Điều này tạo nên một môi trường thoáng đãng và sạch sẽ, không bị tối tăm hay ngột ngạt như với các tấm tôn truyền thống.
Đây cũng là khu vực lý tưởng để gia chủ thể hiện niềm đam mê với việc trồng cây, tạo nên một khu vườn mini nhỏ xinh, làm tăng thêm vẻ đẹp và sự tươi mới cho ngôi nhà phố 2 tầng này.
Không gian sống chính của gia chủ được chúng tôi thiết kế vô cùng sáng tạo và tiết kiệm diện tích. Với tông màu xanh dương kết hợp với trắng, đây là màu sắc phong thủy phù hợp theo yêu cầu của gia chủ.
Những tông màu tươi sáng này giúp đánh lừa thị giác, tạo cho căn nhà có cảm giác được rộng rãi và mát mẻ hơn.
Phòng khách của nhà phố 2 tầng – Nhà chị Trang được kết nối trực tiếp với phòng ngủ bằng một tấm màn treo, tạo sự linh hoạt trong việc sử dụng không gian và cho phép thay đổi bố trí tùy theo nhu cầu của gia đình.
Bên cạnh phòng khách là căn bếp nhỏ gọn, mặc dù chỉ vừa đủ công năng nhưng lại rất thông thoáng nhờ vào một ô cửa sổ nhỏ. Cửa sổ này không chỉ cung cấp ánh sáng tự nhiên mà còn mang lại sự mát mẻ và dễ chịu cho các thành viên trong gia đình.
Nhà vệ sinh luôn tràn ngập ánh sáng nhờ vào ô cửa kính lớn được dán decal mờ, không chỉ mang lại vẻ đẹp thẩm mỹ cho không gian mà còn có khả năng khử khuẩn hiệu quả, giữ cho khu vực này luôn sạch sẽ và dễ chịu.
Các chi tiết nội thất trong căn nhà phố cũng được thiết kế rất chi tiết, để đảm bảo được sự tối ưu hóa diện tích sử dụng và tạo cho gia chủ nhà sự tiện lợi nhất. Hệ tủ đồ kết hợp với giường ngủ, gầm giường cũng được tận dụng để làm nơi chứa đồ.
Lời kết
Ngày nay, với tình trạng đất chật người đông, căn nhà có thể vừa là nơi ở, vừa có thể tận dụng để cho thuê tăng thêm thu nhập. Căn nhà phố 2 tầng – nhà chị Trang là một ví dụ tiêu biểu cho mô hình này.
Ngoài lợi ích về kinh tế, thì hạn chế của nó là không gian sống của bạn sẽ bị thu hẹp lại. Nhưng với sự thiết kế và thi công của công ty chuyên về các giải pháp cho không gian nhỏ như Kiến Trúc 1mm thì vấn đề này lại trở thành một câu chuyện thú vị.
Chúng tôi tin rằng căn nhà phố 2 tầng trên sẽ là một minh chứng rõ ràng cho việc tận dụng tối đa không gian trong các căn nhà phố hiện tại, tuy nhỏ nhưng luôn mang lại cho gia chủ sự thoải mái và tiện nghi nhất.
—————————————
CÔNG TY KIẾN TRÚC 1mm
- Hotline: +84.961.357.465
- Email: 1mmArchitects.CO@gmail.com
- Website: 1mm.com.vn
- CN Sài Gòn: Tòa nhà The Prince Residence – 19, 21 Nguyễn Văn Trỗi, phường 11, quận Phú Nhuận, TP.HCM
- CN Đà Lạt: Thảo Tùng Villa – 20 Sương Nguyệt Ánh, phường 9, Đà Lạt, Lâm Đồng












