Giới thiệu
Quán Đá Chai Speakeasy bar là một bản tình ca của nghệ thuật kiến trúc và pha chế. Được thiết kế và thi công bởi công ty Kiến Trúc 1mm, Đá Chai Speakeasy bar khoác lên mình tấm áo mới với phong cách sinh động và đầy màu sắc.
Nội dung
Khi ánh nắng cuối ngày dần tắt, Đá Chai Speakeasy bar trở nên lấp lánh và rực rỡ nhờ hệ thống đèn LED neon đủ màu sắc đặt ẩn trong các vật dụng nội thất, hoặc cố tình lộ ra để trang trí.
Điều này tạo ra một bầu không khí trẻ trung, năng động, nhưng lại không quá ồn ào, giúp tất cả khách hàng đều cảm thấy mới lạ nhưng lại vô cùng thoải mái khi tới thưởng thức những ly beer độc đáo.
Quán Đá Chai Speakeasy bar có thiết kế bắt mắt với gam màu tối, từ trần đen, tường sơn hiệu ứng bê tông cho đến nền sàn bê tông xoa hồ dầu. Tất cả đều làm nền để tôn lên những chi tiết trang trí, cùng với các món đồ sưu tầm được tỉ mỉ sắp xếp khắp nơi, làm cho không gian trở nên đặc biệt thu hút.
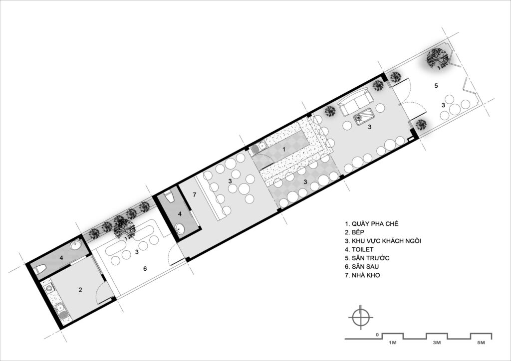
Quầy bar chiếm một diện tích lớn trong không gian tổng thể của quán, với bức tường ốp gạch giả cổ làm nền cho chữ “Đá Chai Speakeasy bar” từ đèn neon. Các khách hàng sẽ được tư vấn cách chế tạo những ly cocktail độc đáo, hoặc đơn giản là thư giãn cùng những ly rượu vang lên men được đóng chai tại chỗ.
Một bức tường được làm từ những chai bia đã qua sử dụng, với hơn 700 chai được xếp chồng lên nhau tạo thành một vách ngăn giữa không gian thư giãn và nhà vệ sinh. Điều này giúp tạo ra một không gian mang tính hài hòa, kết hợp giữa phong cách hoài cổ và sự hiện đại, rất phù hợp với cái tên Đá Chai Speakeasy bar.
Quán còn có một không gian bếp nhỏ nằm phía cuối nhà, ngăn cách với không gian chính của quán bằng một khoảng sân rộng. Điều này giúp cho việc chế biến các món ăn nhẹ phục vụ cho khách hàng thuận tiện hơn, mà không bị bay mùi gây ảnh hưởng đến những vị khách khác.
Khoảng sân ngoài trời trước căn bếp sẽ là chỗ ngồi lý tưởng cho những người muốn chuyển sang không gian ngoài trời, để cảm nhận bầu không khí thoáng mát. Khoảng sân của Đá Chai Speakeasy bar gồm những chiếc ghế nhỏ, dãy đèn Pub, và hàng cây xanh mát giúp tạo ra không gian thoải mái nhất cho khách hàng.
Quán Đá Chai Speakeasy bar tập trung vào việc làm nổi bật quầy bar và các món đồ trang trí. Trần, tường, sàn đều được thiết kế theo tông màu đen hoặc xám, cùng với bức tường ốp gạch giả cổ làm nền cho chữ Đá Chai làm từ đèn neon. Nhiều tấm poster a4 được dán lên tường để tăng tính cá nhân và độ chất cho quán.
Lời kết
Đá Chai Speakeasy bar là một điểm đến không thể bỏ qua cho những ai yêu thích phong cách năng động. Các khách hàng chắc chắn sẽ bị cuốn hút bởi sự thoải mái và thân thiện của không gian này, cũng như sự sáng tạo đầy tinh tế của những món đồ uống được phục vụ tại đây.
—————————————
CÔNG TY KIẾN TRÚC 1mm
- Hotline: +84.961.357.465
- Email: 1mmArchitects.CO@gmail.com
- Website: 1mm.com.vn
- CN Sài Gòn: Tòa nhà The Prince Residence – 19, 21 Nguyễn Văn Trỗi, phường 11, quận Phú Nhuận, TP.HCM
- CN Đà Lạt: Thảo Tùng Villa – 20 Sương Nguyệt Ánh, phường 9, Đà Lạt, Lâm Đồng













