Căn hộ 3 phòng ngủ Phú Mỹ Hưng - Kiến Trúc 1mm
CĂN HỘ 3 PHÒNG NGỦ – PHÚ MỸ HƯNG
Đơn vị thiết kế thi công:
Công trình:
Căn hộ chung cư
Chủ đầu tư:
Chị Lan
Quy mô:
73m²
Địa chỉ:
Nguyễn Lương Bằng, phường Tân Phú, quận 7,HCM

Giới thiệu

Căn hộ 3 phòng ngủ tại tòa nhà chung cư Phú Mỹ Hưng là một dự án bất động sản nổi tiếng tại Sài Gòn. Công ty Kiến Trúc 1mm rất vui vì đã hợp tác với chị Lan để tạo nên một không gian sống hài hòa, tiện nghi cho gia đình.

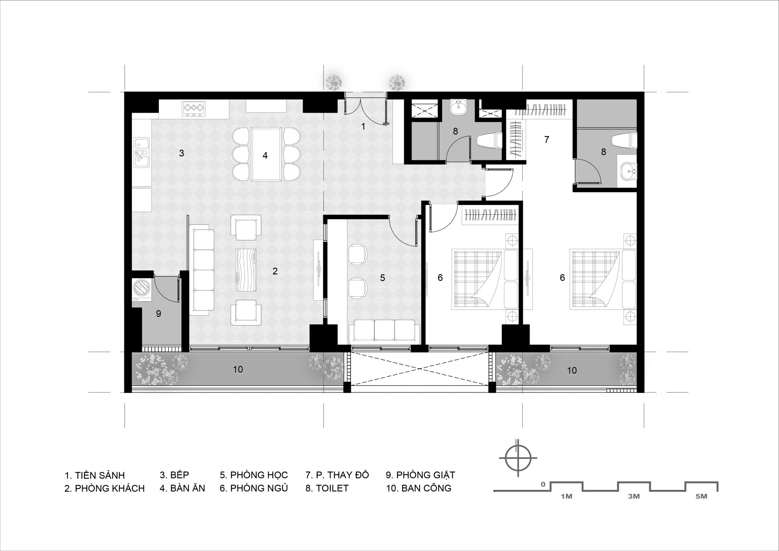
Đây là một căn hộ 3 phòng ngủ rộng 73m² với mặt bằng trống, yêu cầu của gia chủ là thiết kế chuyển đổi công năng của căn hộ 3 phòng ngủ thành căn hộ có một phòng khách, một phòng bếp, một phòng làm việc, hai phòng ngủ, hai WC.

Như vậy, các không gian chức năng đã rõ, việc còn lại của công ty Kiến Trúc 1mm là thiết kế sao cho không gian trở nên hợp lý, tạo ra nhiều không gian mở để kết nối các thành viên trong gia đình lại với nhau.

Với bất cứ một căn hộ nào cũng vậy, người thiết kế tạo nên không gian và tiện nghi, nhưng chính chủ nhân mới là người biến ngôi nhà thành tổ ấm. Căn hộ 3 phòng ngủ này sở hữu một không gian thô thông thoáng, có nhiều cửa, bài toán đặt ra cho kiến trúc sư Kiến Trúc 1mm trở nên dễ dàng hơn khi chủ đầu tư xác định rõ được phong cách mà mình muốn hướng đến.

Nội dung 

Với tông màu trung tính chủ đạo là trắng và nâu gỗ, căn hộ 3 phòng ngủ này được trang bị đồ dùng làm từ vật liệu thiên nhiên bền vững. Thiết kế này không chỉ tạo nên một không gian đơn giản và sang trọng mà còn mang đến sự thư giãn và êm ái cho gia chủ.

Từng chi tiết trong căn hộ đều được chăm chút tỉ mỉ để đảm bảo tính thẩm mỹ và độ bền, đồng thời phản ánh phong cách sống thanh thoát và hiện đại của chủ nhân.

Căn hộ 3 phòng còn có một điểm đặc trưng là bếp và phòng khách được mở thông với nhau. Giúp giảm bớt tầm nhìn và các vật cản khi chúng ta đi lại, làm cho không gian sống trở nên rộng rãi thoáng mát hơn. Khi ngồi ăn, cảm giác sẽ rất thú vị khi nhìn ra phòng khách. Và ngược lại khi ngồi ở phòng khách, bạn có thể nhìn thấy bếp và không gian mở phía sau.

Với thiết kế như vậy, căn hộ 3 phòng ngủ sẽ tạo nên một không gian duy nhất cho phòng khách và phòng bếp, góp phần tạo nên sự gắn kết giữa các thành viên trong gia đình lại với nhau.

Bên cạnh đó, một điểm nhấn nữa của căn hộ 3 phòng ngủ là một cây đàn piano nằm đối diện với ghế sofa ở phòng khách. Điều này cho thấy chủ nhân của căn hộ rất yêu thích âm nhạc. Sẽ luôn có những buổi tiệc âm nhạc nhỏ, giúp mọi người trong gia đình tận hường những phút giây thư giãn thú vị.

Lời kết

Sự tinh tế và hài hòa được Kiến Trúc 1mm gói ghém trọn vẹn trong một căn hộ chung cư 3 phòng ngủ, lan tỏa bằng gam màu trung tính và vật liệu thiên nhiên bền vững. Hy vọng căn hộ trên đây sẽ giúp cho bạn có thêm ý tưởng và cảm hứng cho ngôi nhà của chính mình.

—————————————

CÔNG TY KIẾN TRÚC 1mm