Bill Sài Gòn coffee - Kiến Trúc 1mm
BILL SÀI GÒN COFFEE
Đơn vị thiết kế thi công:
Công trình:
Quán cafe
Chủ đầu tư:
Anh Tùng – Chị Phương
Quy mô:
45m²
Địa chỉ:
Phố Chợ, quận Tân Phú, Sài Gòn

Giới thiệu

Bill Sài Gòn là một quán cafe được thiết kế và thi công bởi công ty Kiến Trúc 1mm. Quán là một trong những điểm đến lý tưởng cho du khách muốn khám phá vẻ đẹp của thành phố Sài Gòn. Nằm ngay tại ngã ba đường, gần khu chợ nhộn nhịp và đối diện với một nhà thờ lớn, Bill Sài Gòn phục vụ cho mọi người làm việc xung quanh, những cô chú tập thể dục sáng sớm hay đơn giản chỉ là những khách hàng muốn ghé qua để thưởng thức thức uống tại đây.

Nội dung

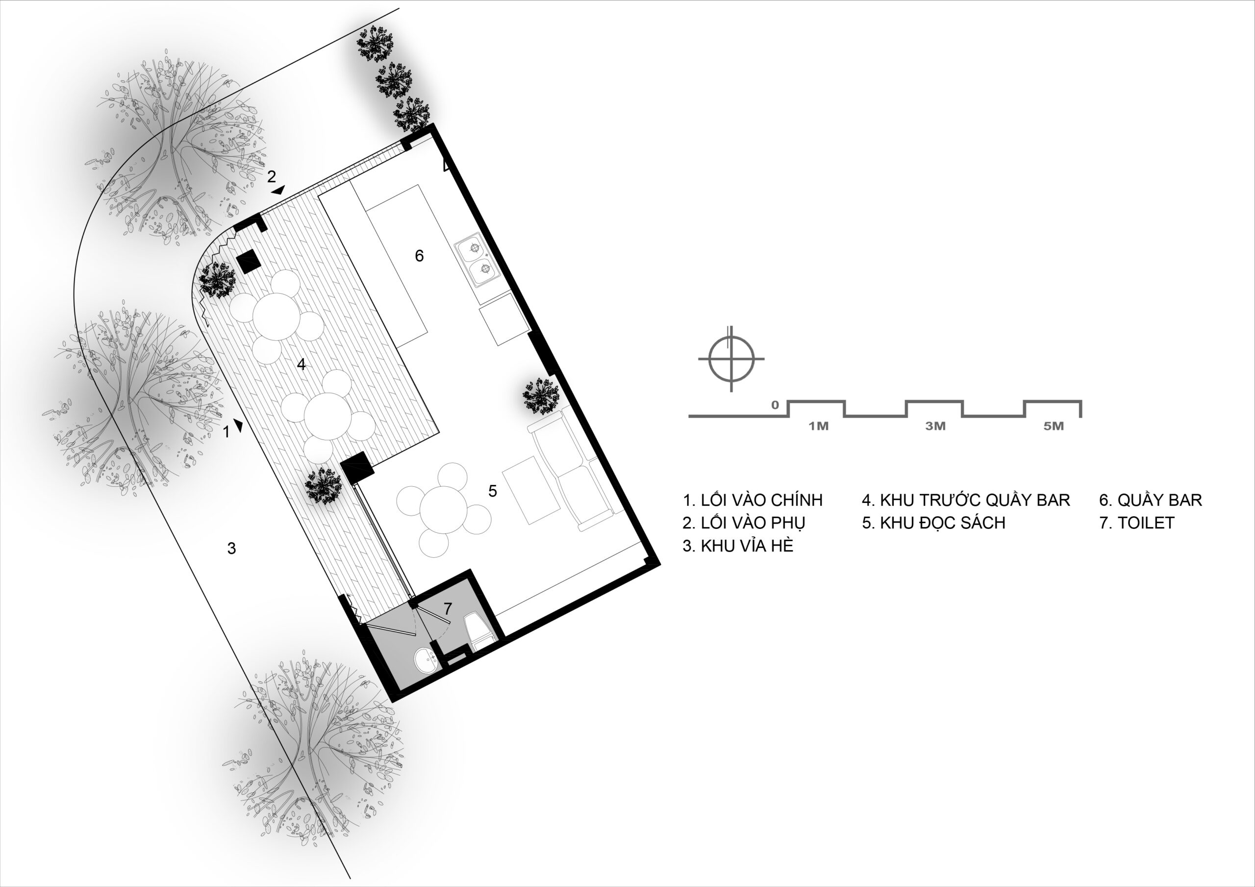
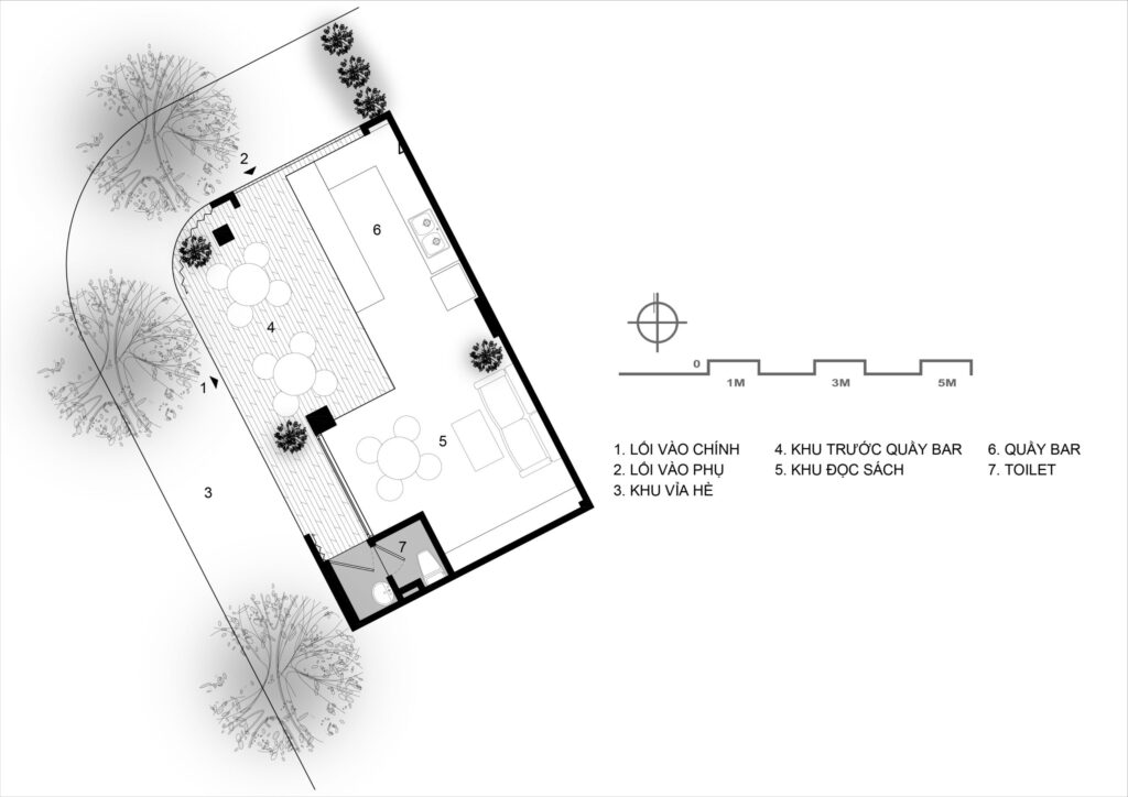
Quán cafe được thiết kế với không gian hiện đại, nhưng lại mang chút hơi thở của châu Âu qua những mảng tường gạch cổ và các món đồ trang trí. Không gian quán được chia thành 2 khu riêng biệt – trong và ngoài quán – với mỗi khu mang lại cho khách những cảm xúc khác nhau.

Khu vực trong quán Bill Sài Gòn được trang trí với những món đồ nội thất hiện đại và tinh tế, tạo cảm giác sang trọng, ấm cúng.

Ánh sáng được Kiến Trúc 1mm sử dụng một cách thông minh, khiến không gian của quán trở nên mở rộng hơn.

Bên cạnh đó, khu vực ngoài trời của Bill Sài Gòn được bao phủ bởi hàng cây xanh tươi mát, che phủ trước mái hiên giúp cho quán luôn luôn mát mẻ dưới cái nắng gắt đặc trưng của Sài thành.

Để tận dụng hết lợi thế nằm ngay ngã ba đường, Kiến Trúc 1mm thiết kế toàn bộ lối vào của Bill Sài Gòn là hệ cửa kéo để mở rộng không gian quán tối đa, tân dụng tối đa vị trí đắc địa để tạo ra một không gian rộng rãi nhất. Có thể bạn sẽ bị mê hoặc với luồng gió mát từ bên ngoài, mang đến cảm giác thoải mái hơn khi ngồi uống cà phê.

Vào lúc hoàng hôn, từ khoảng 5h đến 6h chiều, khi mà một chút nắng chiều còn lại cố gắng len lỏi vào giữa những chiếc ghế và chạm tới khu quầy bar – một điểm nhấn nổi bật của quán – khi đó màu vàng ươm của nắng kết hợp với tổng thể màu sắc và vật liệu nội thất bên trong tạo nên một sự kết nối hòa hợp âm dương, sáng tối.

Nếu bạn là một người yêu nghệ thuật, đừng quên chiêm ngưỡng các tác phẩm trang trí được trưng bày trên kệ. Ở đây, Bill Sài Gòn có một số sách và tạp chí nghệ thuật để bạn có thể đọc thư giản trong lúc thưởng thức cafe.

Chi tiết của quán cafe Bill Sài Gòn cũng rất được chú trọng, từ những cuốn sách cho đến bức tượng nghệ nhân thổi kèn Saxophone. Tất cả đều được công ty Kiến Trúc 1mm chọn lựa kỹ càng để tạo nên một tổng thể thống nhất, đảm bảo rằng khách hàng khi đến đây sẽ có được những trải nghiệm tốt nhất, không chỉ là những tách cafe, mà còn là không gian khi bước vào quán.

Lời kết

Nhờ không gian được thiết kế mở hoàn toàn, quán café Bill Sài Gòn không chỉ là một địa điểm tuyệt vời để thưởng thức cà phê ngon mà còn là một nơi lý tưởng để thư giãn và tìm thấy sự yên tĩnh sau những giờ phút căng thẳng. Bạn hãy ghé thăm quán này và cảm nhận sự khác biệt nhé!

—————————————

CÔNG TY KIẾN TRÚC 1mm