Giới Thiệu
Trong bối cảnh cuộc sống ngày càng ồn ào và áp lực, nhu cầu tìm kiếm một không gian nghỉ ngơi tĩnh lặng, gần gũi với thiên nhiên được nhiều người đặc biệt quan tâm. Biệt thự sân vườn Mỹ Tho chính là sự lựa chọn hoàn hảo cho những ai muốn tìm kiếm một không gian sống độc đáo và yên tĩnh giữa lòng thành phố.
Căn biệt thự sân vườn với quy mô 790m², gồm hai tầng mang đến một không gian sống hoàn hảo, là sự kết hợp tuyệt vời giữa phong cách Scadinavian và Tropical.
Nội dung
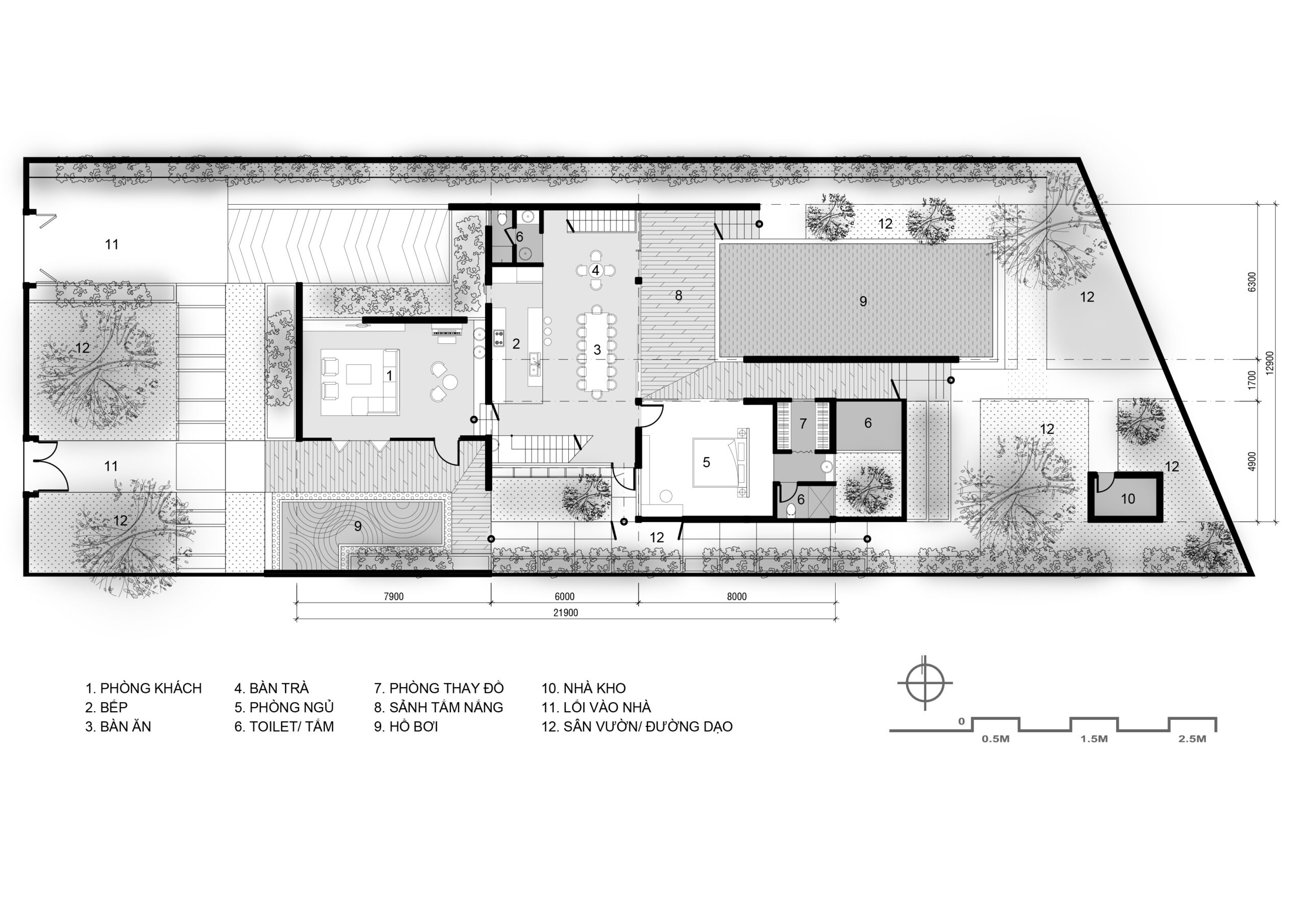
Tầng trệt của căn biệt thự sân vườn Mỹ Tho bao gồm một phòng khách, một phòng bếp kết hợp với phòng ăn, một phòng ngủ. Hồ bơi được thiết kế với view nhìn chính từ phòng ăn và phòng ngủ, tạo nên một không gian vô cùng sống động, hiện đại.
Nhẹ nhàng nhưng sang trọng, phòng khách gây ấn tượng bởi bảng màu nâu trầm ấm áp, không gian phòng khách được mở rộng ra sân vườn về cả hai phía bằng thủ pháp sự dụng hệ thống cửa kính, tạo cảm giác thoáng đãng, không bị gò bó giữa thời tiết nóng nực oi bức.
Bên cạnh đó cấu trúc cởi mở của phòng ăn giúp căn phòng nhìn càng sang trọng hơn, với view nhìn thẳng ra hồ bơi kết hợp với những món đồ nội thất gỗ tạo nên nét hiện đại mà thanh lịch.
Hồ bơi được đưa vào để đáp ứng đúng nhu cầu nghỉ ngơi và thư giản của gia chủ. Đứng từ phòng ăn và phòng ngủ, có thể trông thấy trọn vẹn được toàn cảnh của hồ bơi, tạo ra một không gian riêng đảm bảo sự độc đáo và thực sự mang lại không gian thư giãn trong điều kiện khí hậu nhiệt nắng nóng vào mùa hè.
Toàn bộ nội thất được bố trí đơn giản nhưng không kém phần sang trọng, với hệ thống tủ gỗ được điểm xuyết bởi một vài món đồ trang trí tinh tế, cùng với một vài chiếc sofa, armchair và bàn ăn gỗ nguyên tấm. Tất cả mang đến một không gian sống tối giản mà vẫn đầy đủ tiện nghi.
Sự kết hợp giữa phong cách Scadinavian và Tropical là sự đan xen hoàn hảo giữa hai phong cách thiết kế khác nhau. Phong cách Scadinavian với sự đơn giản, và một chút đơn sắc nhẹ nhàng được kết hợp với phong cách Tropical – sự ấm nóng và năng động nơi vùng nhiệt đới. Hai phong cách hòa quyện vào nhau, mang lại sự ấm áp, gần gũi và bừng sáng cho không gian của căn biệt thự.
Những điểm nhấn của kiến trúc Scadinavian là việc sử dụng các vật liệu tự nhiên như gỗ, đá cùng với các gam màu kem tạo nên sự nhẹ nhàng, đồng thời kết hợp với không gian mở của kiến trúc Tropical, mang đến sự thoáng đãng, mát mẻ cho cả ngôi nhà.
Với hệ thống cửa sổ lớn giúp ánh sáng tự nhiên lan tỏa đến từng góc nhỏ của căn biệt thự sân vườn, gia chủ có thể tận hưởng được khung cảnh thiên nhiên tuyệt đẹp, góp phần tạo nên một không gian đầy sức sống.
Không gian sống trong biệt thự sân vườn Mỹ Tho là sự kết hợp hoàn hảo giữa thiên nhiên và kiến trúc. Sử dụng màu sắc trầm, tối giản nhưng không kém phần sang trọng và tiện nghi, biệt thự sân vườn Mỹ Tho mang đến cho gia chủ không chỉ là một nơi để ở, mà là một không gian để nghỉ ngơi, thư giãn và tận hưởng cuộc sống.
Lời kết
Biệt thự sân vườn Mỹ Tho với quy mô 790m², là sự kết hợp giữa phong cách Scadinavian và Tropical đem đến cho gia chủ một không gian sống độc đáo, đầy ấn tượng. Sự khéo léo trong kiến trúc, sự tinh tế trong thiết kế nội thất và không gian sống hòa hợp với thiên nhiên sẽ là nơi dừng chân lý tưởng cho những người đang tìm kiếm một không gian sang trọng và độc đáo.
—————————————
CÔNG TY KIẾN TRÚC 1mm
- Hotline: +84.961.357.465
- Email: 1mmArchitects.CO@gmail.com
- Website: 1mm.com.vn
- CN Sài Gòn: Tòa nhà The Prince Residence – 19, 21 Nguyễn Văn Trỗi, phường 11, quận Phú Nhuận, TP.HCM
- CN Đà Lạt: Thảo Tùng Villa – 20 Sương Nguyệt Ánh, phường 9, Đà Lạt, Lâm Đồng
















